Rv Garage Ceiling Height : Most homes attached garages will not accommodate an rv.. It will cost a bit less than a new airstream According to irc, all habitable rooms must have a minimum ceiling height of seven feet. Features a 20x30 standard garage combined with a 16'x45' rv garage. Having said this some class a rv could be more in height and width. Some garages are built with a storage area for campers and rvs.

If you need a specific clearance for your rv, car, boat, or anything else you store under the carport, garage, or barn, please verify that requirement before ordering. Having said this some class a rv could be more in height and width. It needs a proper architectural plan and design. According to irc, all habitable rooms must have a minimum ceiling height of seven feet. What with the spacious layout and tall ceilings, high bay garage plans and hydraulic lifts almost seem meant for each other.

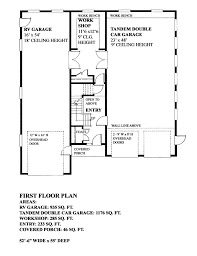
Traditional Style 3 Car Rv Garage Plan Wareham
Traditional Style 3 Car Rv Garage Plan Wareham from api.advancedhouseplans.com
Use a high lift movement. But not a really big rv. Most homes attached garages will not accommodate an rv. It is not likely that you will be able to fit your motorhome in the spot. The legal road limit of an rv is 13 ft 6 in high and 8 ft 6 in wide. However, they are usually 12 feet in height. Don't assume that because it is labeled as an rv garage plan that the ceiling is automatically high enough to accept your 36' fifth wheel with a rooftop ac unit! Class a rvs are usually the tallest types of motorhomes, with an average height of 13 feet, 6 inches.

What with the spacious layout and tall ceilings, high bay garage plans and hydraulic lifts almost seem meant for each other.

Here are some example of class a rv of different makes, models with their lengths. When you are getting ready to convert a van for that big adventure that you have been. What with the spacious layout and tall ceilings, high bay garage plans and hydraulic lifts almost seem meant for each other. I went window shopping at a rv dealer who had a 2002 alfa and the thing is gigantic inside. The single garage has 10 × 7', 9 × 7' and 8 × 7' around. Therefore, if your garage is 16′ tall, you can have up to a 14′ tall sectional door. There are even some class as that reach all the way up to 14 feet. Class a rvs are usually the tallest types of motorhomes, with an average height of 13 feet, 6 inches. Make sure that the design you are looking at is tall enough; Garage would need a average height of at least 14 feet or more and length in excess of 45 feet. Bjoyce, the newmar allstars are nice but too new for my budget. If the garage ceiling is too low. We decided to use big doors and hope that future home owner would pay for the doors and hinges.

It is not likely that you will be able to fit your motorhome in the spot. According to irc, all habitable rooms must have a minimum ceiling height of seven feet. Class a rv width stands at an average of 9.5 feet. It needs a proper architectural plan and design. Do not use a standard lift movement if you have over 2 ft.

16 Foot Rv Garage Door Schweiss Must See Photos
16 Foot Rv Garage Door Schweiss Must See Photos from www.bifold.com
Class a rvs are usually the tallest types of motorhomes, with an average height of 13 feet, 6 inches. Use a high lift movement. These are significantly different from your normal single/double garage door sizes. If you have multiple vehicles, you have to make a bigger garage as storage. Under ibc rules minimum ceiling height in these buildings must be 7 feet 6 inches in hallways, common areas, and habitable rooms. But not a really big rv. Having said this some class a rv could be more in height and width. Some have a total of 14 feet in height, and may be even taller with an air conditioning unit or satellite dish on top.

Dot regulations, mandate that no rv in the us is manufactured over 13'6, this meaning that no new bridges are built in the us under 14' tall.

Measure the height of the van carefully and add an inch for clearance. Class a rvs tend to be the tallest, with an average height of 13 feet, 6 inches. Understanding rv carport heights and their components: These are significantly different from your normal single/double garage door sizes. I went window shopping at a rv dealer who had a 2002 alfa and the thing is gigantic inside. Some garages are built with a storage area for campers and rvs. Call 866.767.4337 or email us now for friendly & knowledgeable service 24' x 32' detached garage includes 10' interior ceiling height, (3) 9' x 9' garage doors, cedar shingle siding, and 7/12 roof pitc call 866.767.4337 or email us now for friendly & knowledgeable service 24' x 24' detached garage with 10' x 12' ell includes 12' interior. There are three additional truss members internal to the trusses. The single garage has 10 × 7', 9 × 7' and 8 × 7' around. The damon won't work either cause the bed is over the garage so the interior height of the garage isn't that great. If you want to be sure that your rv will fit and not risk scraping the ceiling, a door around sixteen feet should be more than adequate. Class a rvs are usually the tallest types of motorhomes, with an average height of 13 feet, 6 inches. It needs a proper architectural plan and design.

To determine what size rv garage door you will need, it's important to remember that there must be 2 feet of space between the top of the door and the eave of the garage. However, they are usually 12 feet in height. This rv typically requires a garage with a clearance height of at least 14 feet, and 45 to 50 feet in length depending on how much additional storage you wish to have. We wanted to do a diy, but realized it takes underst. If the garage ceiling is too low.

3 Bay Rv Garage Snohomish
3 Bay Rv Garage Snohomish from permabilt.com
Remember the garage has to fit with your rv; The roof is adjusted on site to match up with the roof of the rv garage. The single garage has 10 × 7', 9 × 7' and 8 × 7' around. With the average rv garage door height being about thirteen feet. Still, you need to be aware of your exact rv size to be able to choose the right door size for it. Class a rv width stands at an average of 9.5 feet. We wanted to do a diy, but realized it takes underst. To determine what size rv garage door you will need, it's important to remember that there must be 2 feet of space between the top of the door and the eave of the garage.

When you are getting ready to convert a van for that big adventure that you have been.

When you are getting ready to convert a van for that big adventure that you have been. What with the spacious layout and tall ceilings, high bay garage plans and hydraulic lifts almost seem meant for each other. There are three additional truss members internal to the trusses. Measure the height of the van carefully and add an inch for clearance. The damon won't work either cause the bed is over the garage so the interior height of the garage isn't that great. The single garage has 10 × 7', 9 × 7' and 8 × 7' around. The is a video of us modifying garage trusses for additional ceiling height to accommodate a 12.5' lift. Let's talk about a couple of real examples. I am planning an rv garage soon. Do not use a standard lift movement if you have over 2 ft. Measure your air conditioning unit, and add the two numbers together to find out the true height. Tango rv and standard garage combination: However, they are usually 12 feet in height.